ACEITA PERMUTA
chevron_left
navigate_next

R$ 1.928.904,78

Apartamento 3 Quartos à venda, Cruzeiro - Belo Horizonte/MG

99,80 m² Área Principal
0 m² Área Lote
3 Quartos
3 Banheiro
3 Vagas
2 Suite

Descrição do imóvel

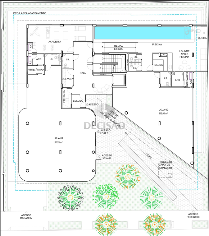
Prédio: De luxo, revestido em ACM aerado/concreto/vidro, recuado com jardins, hall social decorado, água individual, gás canalizado, interfone, lavanderia, lazer com piscina de raia aquecida, bar molhado, sauna, academia, lavanderia, eclusa, portão eletrônico, 02 ou 03 vagas (vide tabela).

Apto: Salão amplo para 02 ambientes, lavabo, varanda, 03 quartos, sendo 02 suítes, banho social ou semi-suítes (suíte master com closet), cozinha americana ampla , área de serviços.

OBS: Tem apartamentos com várias metragens e variação de planta (ver tabela), apartamentos com varanda grande tipo Garden com jardineiras.
OBS: O Prédio possui apartamentos de 02 e 03 quartos e lojas (vide tabela)

imóvel

Cód. imóvel: 34190

Valor

R$ 1.928.904,78

Condomínio

R$ 0,00

Ao informar meus dados, eu concordo com a Política de Privacidade.

Compartilhar nas redes sociais

Encontrar imóvel ideal?

Não se preocupe. Deixe seu email e telefone que um especialista irá te ajudar.

Ao informar meus dados, eu concordo com a Política de Privacidade.

Calendário
WhatsApp